Содержимое: 30916143454963.rar (1.18 MB)
Загружен: 16.09.2013

Положительные отзывы: 1
Отрицательные отзывы: 0

Продано: 2
Возвраты: 0

~ 56 ₽
Точная сумма — на странице оплаты
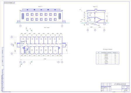
Чертеж двухэтажного здания, выполнен для Уральского Института Государственной Проитвопожарной службы. Чертеж здания+ чертеж узла, выполнен в компасе 13 + есть сохраненная версия в JPEG
Задание рис.73, подходит для вариантов №26,27,28,29,30
Отзывов от покупателей не поступало