Содержимое: 40604133412840.rar (295.58 KB)
Загружен: 04.06.2014

Положительные отзывы: 0
Отрицательные отзывы: 0

Продано: 58
Возвраты: 1

~ 12 ₽
Точная сумма — на странице оплаты
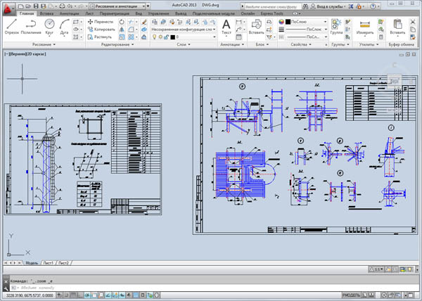
Чертежи мачты прожекторной ПМС-24,0.
Прожекторная мачта типа ПМС применяется для организации освещения на крупных нефтебазах, подстанциях, сортировочных и железнодорожных станциях, морских и речных портах, открытых стадионах и спортивных сооружениях.
Допускается использование прожекторных мачт в качестве освещения и дополнительной молниезащиты для ОРУ (открытых распределительных устройств) с напряжением электрических подстанций до 500 кВт.

Формат - DWG, совместимый с AutoCAD 2004-2014, Компас, ZWCAD, nanoCAD, BricsCAD и т.д.
Отзывов от покупателей не поступало