Содержимое: REPLACEMENT.7z (2.75 MB)
Загружен: 12.09.2015

Положительные отзывы: 0
Отрицательные отзывы: 0

Продано: 12
Возвраты: 0

~ 1341 ₽
Точная сумма — на странице оплаты
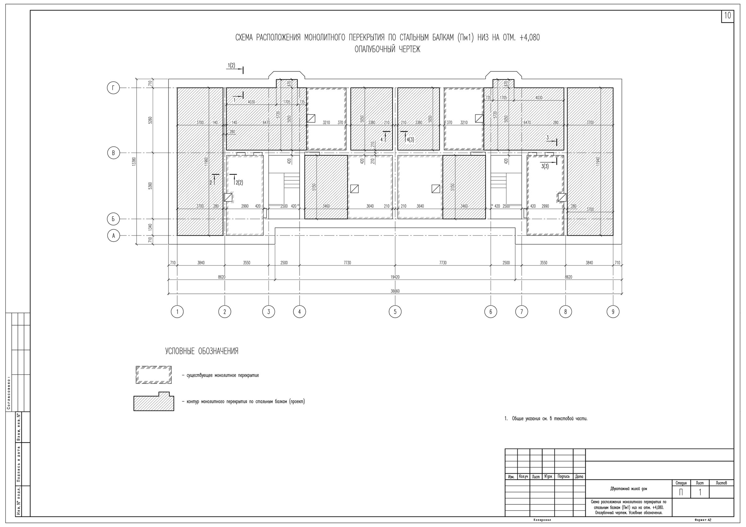
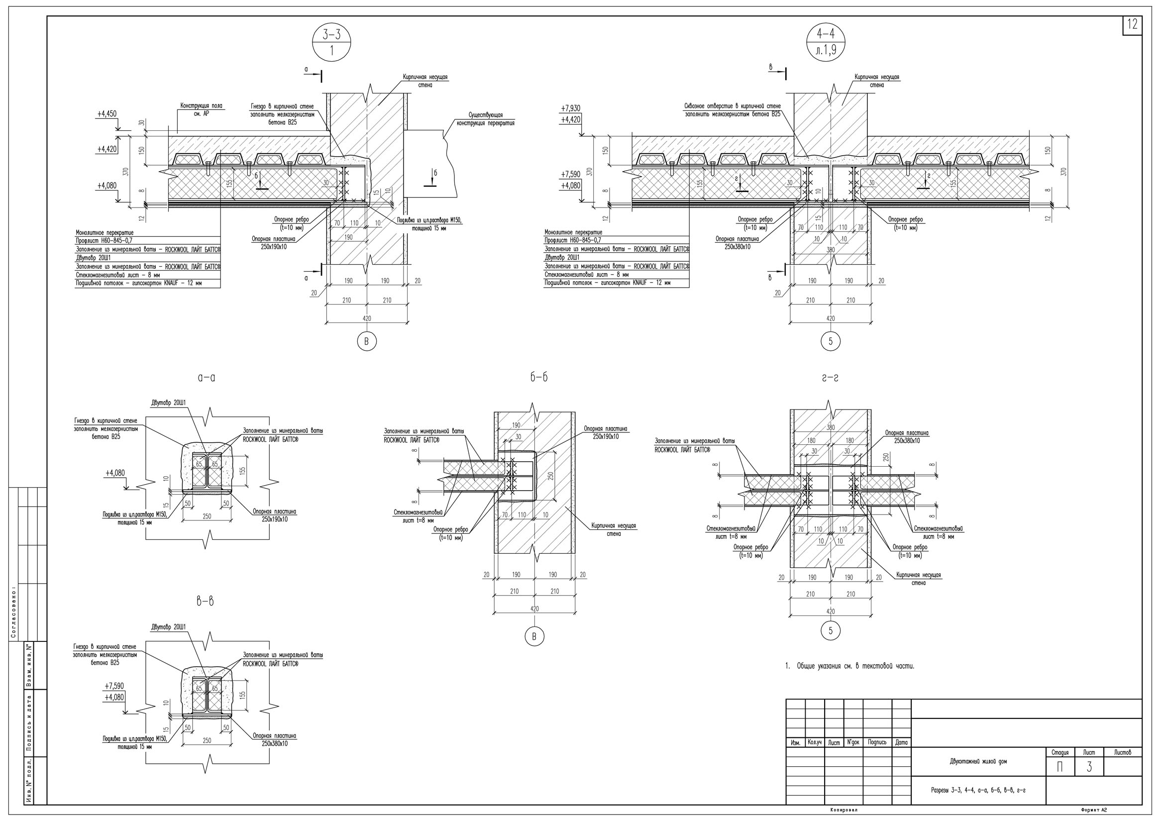
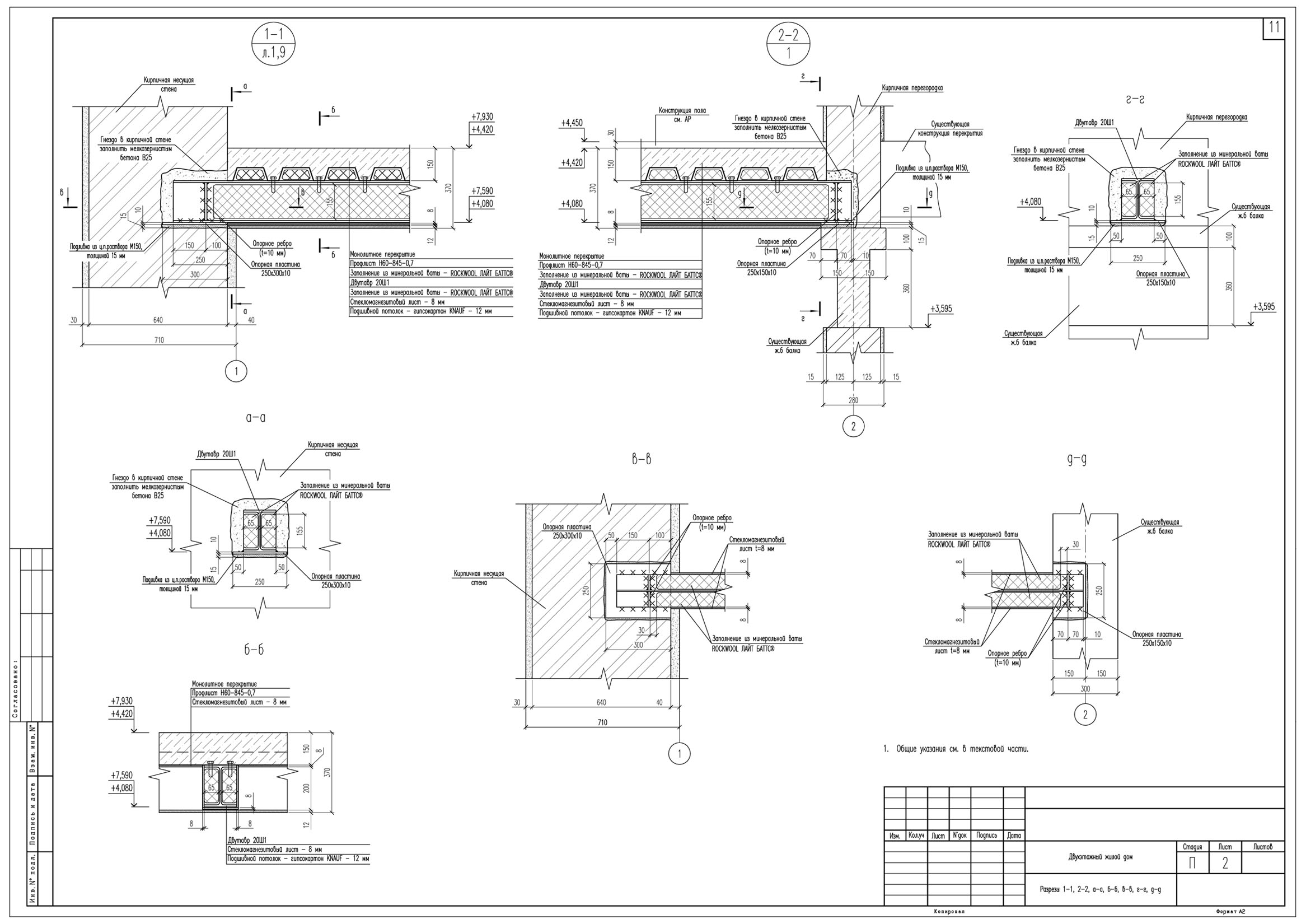
Полный проект по замене деревянного перекрытия на железобетонное по стальным балкам, с заведением их в существующие и вновь устраиваемые гнезда.
Для обеспечения несущей способности в случае пожара в конструкцию плиты включена облицовка из стекломагнезитовых листов с непосредственным креплением к конструкции перекрытия.
Пустые пространства под облицовкой предусмотрено заполнять минеральной ватой.
Графическая часть (подробные чертежи).
Текстовая часть (общие данные, указания по демонтажу деревянных перекрытий, указания при устройстве монолитного перекрытия).
Расчетная часть (расчет балок, общий подробный расчет перекрытий).
В архиве 4 файла
1 файл - редактируемый формат DWG (содержит 15 листов А2). Схемы, планы, узлы, балки, каркасы, спецификации.
2 файла - редактируемый формат DOCX (содержат 5+17 листов). Текстовая часть. Расчеты перекрытий.
1 файл - редактируемый формат XLSX. Расчет балок.
Отзывов от покупателей не поступало