Содержимое: wells connection.7z (809.12 KB)
Загружен: 17.09.2015

Положительные отзывы: 0
Отрицательные отзывы: 0

Продано: 8
Возвраты: 0

~ 1117 ₽
Точная сумма — на странице оплаты
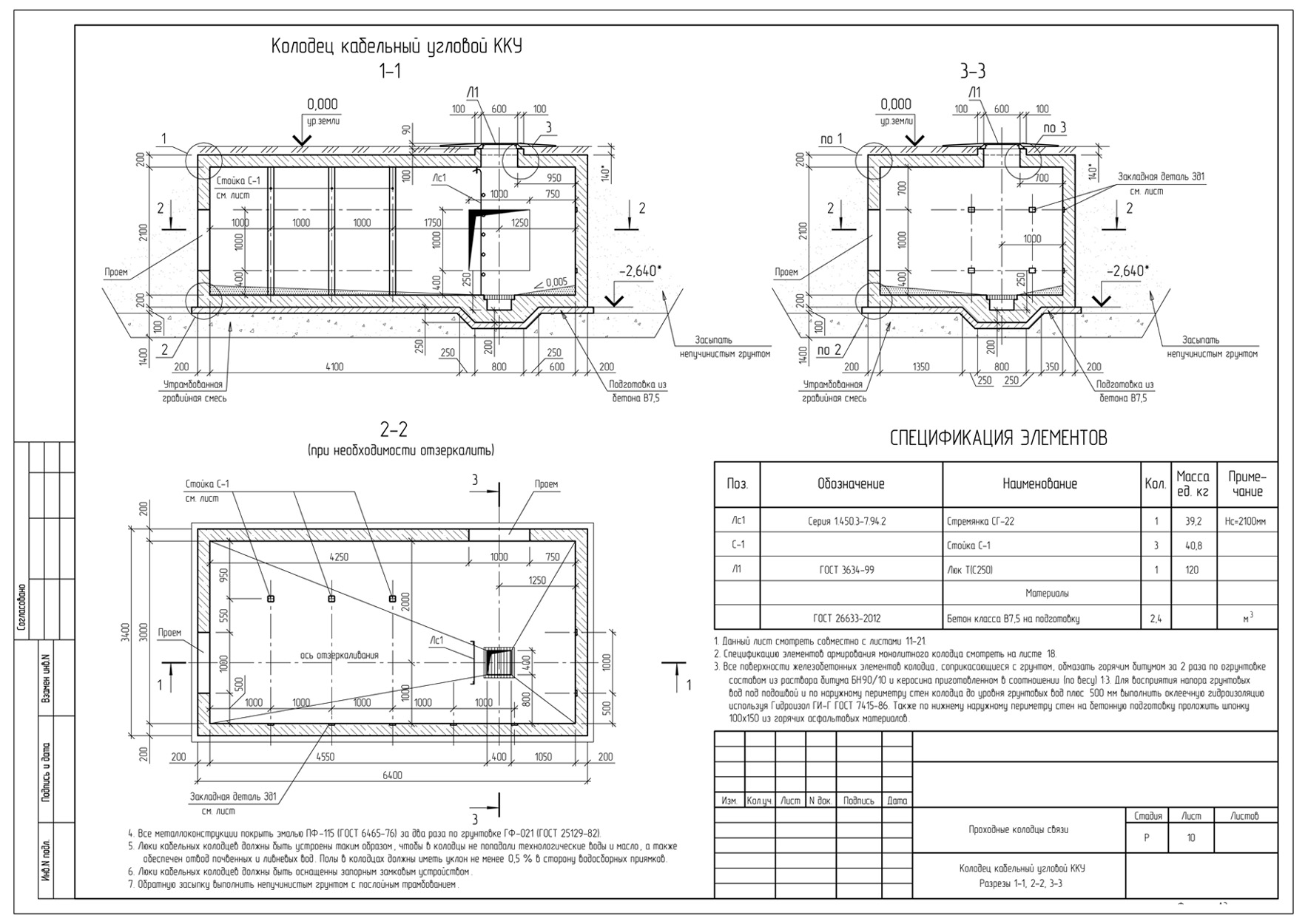
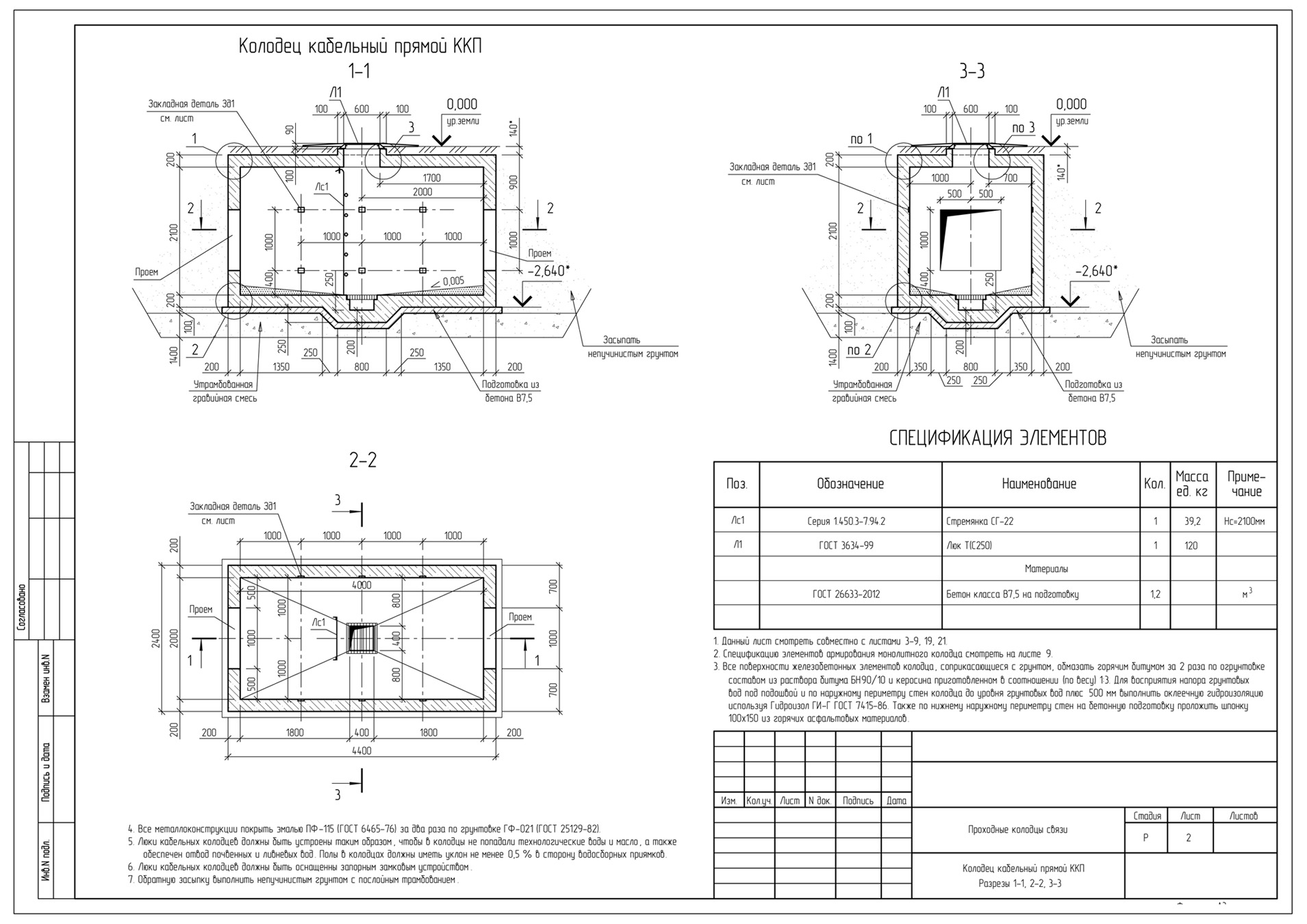
Рабочий проект устройства монолитных железобетонных колодцев связи.
Разработаны согласно типового альбома А10-2011 «Прокладка кабелей в блочной канализации с применением двустенных гофрированных труб ЗАО «ДКС»
Представлено два вида:
1. Колодец кабельный прямой ККП
2. Колодец кабельный угловой ККУ
Пройдена экспертиза.
1 файл - редактируемый формат DWG (содержит 22 листа А3). Схемы армирования, узлы, элементы, спецификации.
1 файл - редактируемый формат xlsx. Сводная ведомость объемов работ (СВОР).
Отзывов от покупателей не поступало