Содержимое: ДипломныйпроектГРП.rar (334.64 KB)
Загружен: 12.11.2015

Положительные отзывы: 0
Отрицательные отзывы: 0

Продано: 2
Возвраты: 0

~ 399 ₽
Точная сумма — на странице оплаты
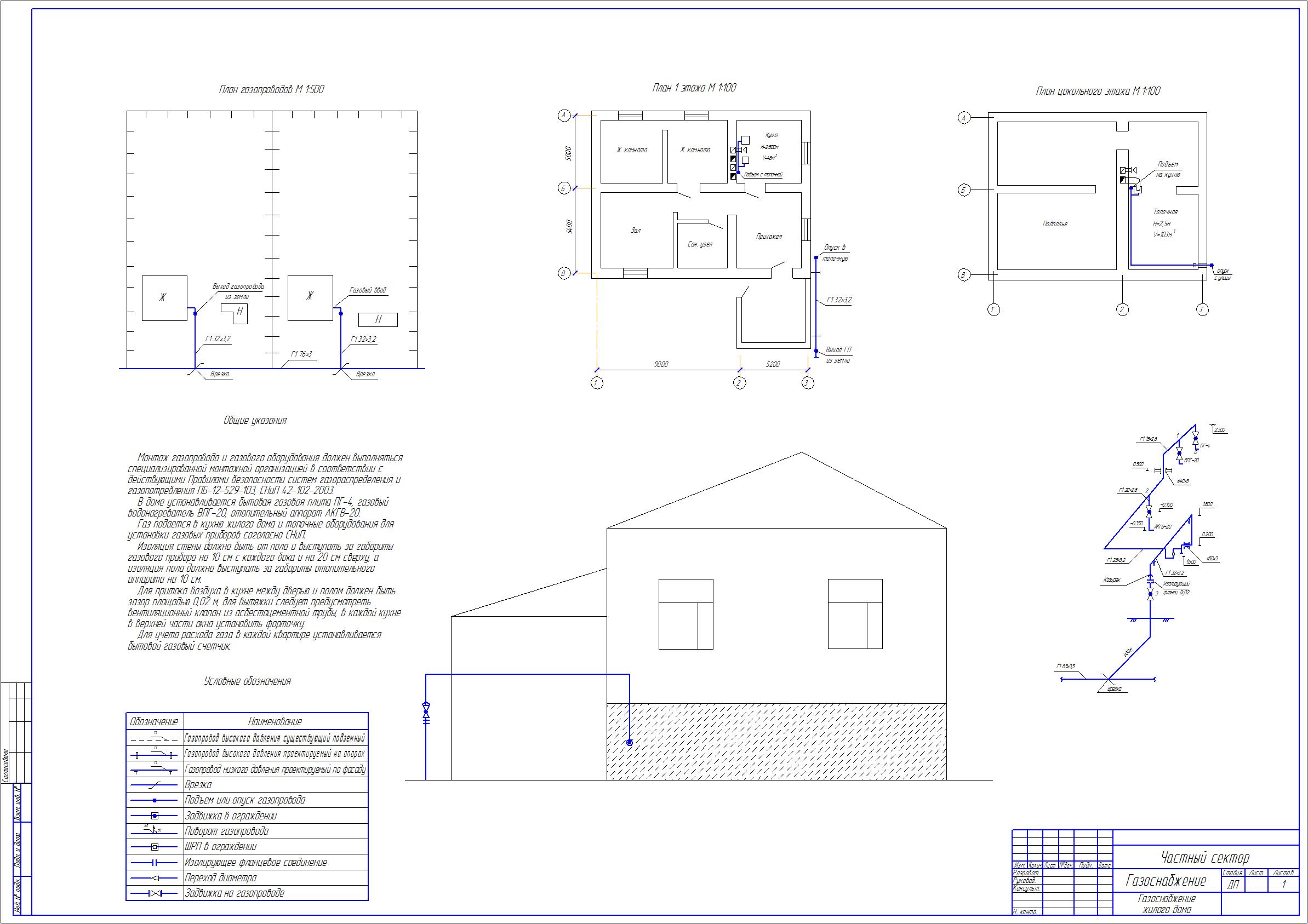
Дипломный проект "ППР на монтаж газопровода частного сектора" по программе техникумов.
Пояснительная записка
Введение
1 Расчетно-технический раздел
1.1 Исходные данные и характеристики объекта
1.2 Характеристика газа и климатические данные
1.3 Расчет параметров газового топлива
1.4 Расчет потребления газа частным сектором
1.5 Выбор и обоснование систем газоснабжения
1.6 Гидравлический расчет газопроводов низкого давления
1.7 Гидравлический расчет внутридомовых газопроводов
1.8 Подбор оборудования ШРП
1.9 Спецификация оборудования заказчика
1.10 Спецификация оборудования подрядчика
2 Назначение, обоснование и состав ППР
2.1 Технология и пути ее совершенствования
2.2 Выбор метода производства работ
2.3 Характеристика грунта и ведомость объема земляных работ
2.4 Выбор ведущих механизмов, машин и приспособлений
2.5 Ведомость основных и вспомогательных материалов
2.6 Калькуляция трудовых затрат и заработной платы
2.7 Сводная ведомость трудовых затрат

6 чертежей в Компасе формат А1
Локальная смета
СО заказчика и подрядчика
Отзывов от покупателей не поступало