Содержимое: arkhitekturno-konstruktivnyy-proekt.rar (960.16 KB)
Загружен: 02.05.2016

Положительные отзывы: 0
Отрицательные отзывы: 0

Продано: 7
Возвраты: 0

~ 614 ₽
Точная сумма — на странице оплаты
3 листа А1 графической части + 28 листов А4 пояснительной записки
Лист 1: Фасад комплекса зданий М 1:200, Продольный разрез производственного здания 2-2 М 1:200, План производственного здания М 1:200, Генеральный план с розой ветров М 1:2000, Экспликация зданий и сооружений, Баланс территории.

Лист 2: Поперечный разрез производственного здания 1-1 М 1:200, Конструктивный разрез АБК по стене М 1:25, Конструктивный разрез производственного здания по стене М 1:25, План покрытия и кровли производственного здания 1:400, План фундаментов производственного здания 1:400, Технико-экономические показатели производственного здания.

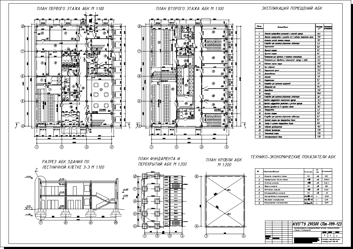
Лист 3: План первого этажа АБК М 1:100, План второго этажа АБК М 1:100, экспликация помещений АБК, Разрез АБК здания по лестничной клетке М 1:100, План фундамента и перекрытий АБК М 1:200, План кровли АБК М 1:200, Технико-экономические показатели АБК.

Содержание пояснительной записки:

1.Исходные данные для проектирования
2.Описание климатических условий района строительства
3.Описание генерального плана, баланс территории
4.Производственное здание
4.1.Объемно-планировочное решение
4.2.Архитектурно-конструктивное решение (с эскизами конструктивных элементов)
4.2.1.Фундаменты и фундаментные балки
4.2.2.Колонны основного каркаса и фахверка
4.2.3.Подкрановые балки
4.2.4.Стропильные и подстропильные конструкции
4.2.5.Фонари
4.2.6.Система связей
4.2.7.Плиты покрытия
4.2.8.Конструкция кровли (с теплотехническим расчётом покрытия и расчётом количества водосточных воронок)
4.2.9.Наружные стены (с теплотехническим расчётом толщины стеновых панелей)
4.2.10.Экспликация полов
4.2.11.Двери, ворота
4.2.12.Рабочие площадки, лестницы
4.3.Наружная и внутренняя отделка
4.4.Инженерные сети
4.5.Технико экономические показатели производственного здания
4.6.Расчёт площади световых проёмов
5.Административно-бытовой корпус
5.1.Расчёт АБК исходя из численности рабочих в цехе
5.2.Объемно-планировочное решение АБК
5.3.Архитектурно-конструктивное решение АБК (с эскизами конструктивных элементов)
5.3.1.Фундаменты и фундаментные балки
5.3.2.Конструкция каркаса по серии ИИ-04 (колонны, ригели, плиты перекрытия, диафрагмы жесткости)
5.3.3.Конструкция кровли (с теплотехническим расчётом толщины утеплителя)
5.3.4.Наружные стены (с теплотехническим расчётом толщины стеновых панелей) и внутренние перегородки
5.3.5.Экспликация полов
5.3.6.Окна, двери
5.4.Наружная и внутренняя отделка
5.5.Инженерные сети
5.6.Технико экономические показатели АБК

Скачать образец: http://pgsfiles.ru/engine/download.php?id=92

Примечание: Формат файла - RAR архив [960,15 Kb]: Чертежи в формате: DWG - Autodesk AutoCAD + Пояснительная записка в формате: DOC - Microsoft Office Word
Отзывов от покупателей не поступало