Содержимое: Якино ЭР.zip (3.75 MB)
Загружен: 26.05.2024

Положительные отзывы: 0
Отрицательные отзывы: 0

Продано: 0
Возвраты: 0

~ 1000 ₽
Точная сумма — на странице оплаты
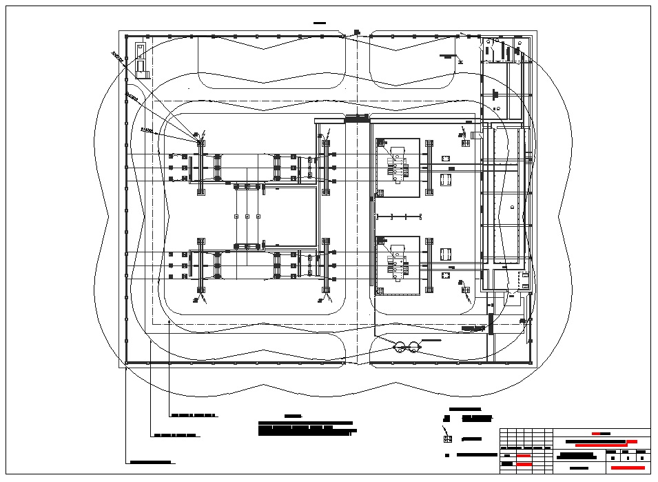
Строительство новой подстанции 110/35/10кВ-Электротехнические решения
Файл Автокад (DWG)

Ведомость рабочих чертежей основного комплекта:

1.Общие данные.
2.Схема электрическая главная.
3.План подстанции.
4.Разрез А-А.
5.Разрез В-В.
6.План заземления подстанции.
7.План молниезащиты подстанции.
8.План освещения подстанции.
9.Кабельный журнал (начало).
10.Кабельный журнал (продолжение).
11.Спецификация (5 листов)
Отзывов от покупателей не поступало