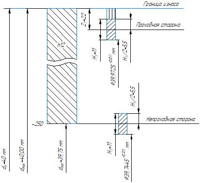
Сборочный чертеж и спецификация калибра-скобы гладкой для контроля размеров вала 40h12. Чертеж и спецификация представлены в программе Компас 3D. Также представлен расчет калибра-скобы в ворде со схемой расположения полей допусков.
Отзывов от покупателей не поступало
Мы используем куки для улучшения работы сайта. Подробнее